Datei:Artilleriekaserne 1995.jpg
Originaldatei (1.231 × 1.953 Pixel, Dateigröße: 1,16 MB, MIME-Typ: image/jpeg)
Bildinformationen
| Datei:Artilleriekaserne 1995.jpg | |||
|---|---|---|---|
| Genre | Historische Dokumente, Pläne und Kartenwerke | ||
| Gebäude | Artilleriekaserne, William O. Darby Kaserne | ||
| Quellangaben | Vidicon | ||
| Dateiart | Bild | Dateityp | jpg |
| Erstellungsdatum | 1995 | ||
| Lizenz | CC BY-SA 3.0 | ||
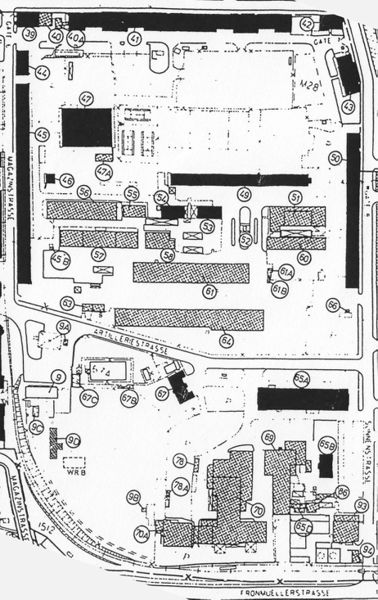
| Beschreibung | Konversionsfläche Darby-Kaserne (ehemalige Artilleriekaserne, Entwicklungsstand 1995) - Schwarz hervorgehoben: "Denkmalwerte Gebäude"; Plan ausgestellt auf einer Schautafel zum Tag des Denkmals 2005 in der Grünen Halle (noch nach amerikanischem Muster nummeriert) | ||
| Dateiinfo (Bild-Unterschrift und Info-Box, automatisch erstellt) | Konversionsfläche Darby-Kaserne (ehemalige Artilleriekaserne, Entwicklungsstand 1995) - Schwarz ... Konversionsfläche Darby-Kaserne (ehemalige Artilleriekaserne, Entwicklungsstand 1995) - Schwarz hervorgehoben: "Denkmalwerte Gebäude";<br />Plan ausgestellt auf einer Schautafel zum Tag des Denkmals 2005 in der Grünen Halle (noch nach amerikanischem Muster nummeriert)<br><br>Lizenz: CC BY-SA 3.0 | ||
| Medienbetrachter-Zeile (automatisch erstellt) | Vidicon ▽ mehr Infos ▽ | ||
| Erstellungsdatum, (ISO-Notation automatisch erstellt) | 1995 | ||
| Semantisches Browsen / Bilder-Suche | |||
Einbindung in Artikelseite
Die Aufnahme in die Bilder-Galerie einer Artikelseite (Abschnitt Bilder) erfolgt automatisch, wenn hier im Formular die passenden Daten eingetragen werden. Z.B. wird dieses Bild dann in der Bilder-Galerie einer Gebäude-Artikelseite angezeigt, wenn hier im Formular das Gebäude exakt(!) mit seinem Seitennamen eingetragen ist (siehe rechts). Für die anderen Artikel-Klassen (Personen, Straßen, Unternehmen usw.) gilt dies analog.
Die Einbindung im Artikeltext (nicht Bilder-Galerie!) kann ohne Box durch Einfügen von {{Bildbox|Bildname.jpg}} bzw. mit Box mittels {{Bildbox|Bildname.jpg|Box-Überschrift}} erfolgen.
Bildname.jpg und Box-Überschrift sind entsprechend zu ändern.
Die Bild-Unterschrift in der Bilder-Galerie als auch in der Bildbox entspricht dabei der hier im Formular eingetragenen Beschreibung.
Siehe auch Hilfe-Seite Grundregeln zur Artikel-Gestaltung, Abschnitt Bilddarstellung
Lizenz
| Diese Datei steht unter der Creative Commons-Lizenz Namensnennung - Weitergabe unter gleichen Bedingungen 3.0 |
Dateiversionen
Klicke auf einen Zeitpunkt, um diese Version zu laden.
| Version vom | Vorschaubild | Maße | Benutzer | Kommentar | |
|---|---|---|---|---|---|
| aktuell | 11:42, 16. Mär. 2017 | 1.231 × 1.953 (1,16 MB) | Vidicon (Diskussion | Beiträge) |
Du kannst diese Datei nicht überschreiben.
Dateiverwendung
Die folgenden 5 Seiten verwenden diese Datei: